Používame cookies

Súbory cookie a ďalšie technológie sledovania používame na zlepšenie vášho zážitku z prehliadania našich webových stránok, na to, aby sme vám zobrazovali prispôsobený obsah a cielené reklamy, na analýzu návštevnosti našich webových stránok a na pochopenie toho, odkiaľ naši návštevníci prichádzajú. Viac info

 

Sklad.priestor+zariadenie služieb,14 árov,Jarmočná ul,KE-JUH

Ulica: Jarmočná
Obec: Košice-Juh
Okres: Košice IV
Kraj: Košický kraj
Druh: Objekty
Typ: Predaj
Typ objektu: Sklad
1 200 000 €

Popis nehnuteľnosti

Realitní makléri Peter Heriban a Klaudia Heribanová Vám ponúkajú exkluzívne na predaj 2 podlažnú budovu slúžiacu ako skladový priestor a zariadenie služieb spolu s rovinatým 14 árovým pozemkom na Jarmočnej ulici v kat.území Južné Mesto, okres Košice-IV, obec Košice-Juh.

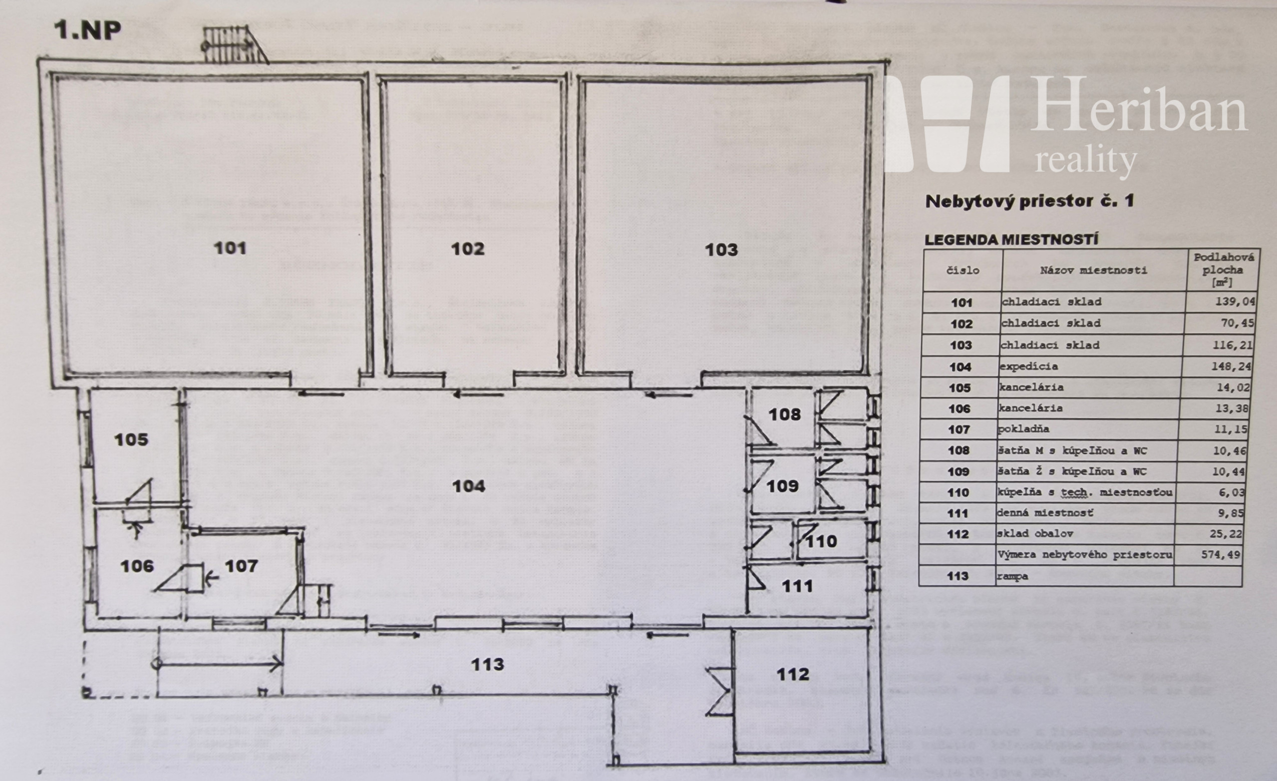
1.NADZEMNÉ PODLAŽIE-stavba slúžiaca ako Veľkosklad ovocia a zeleniny s kancelárskymi priestormi a soc.zázemím pre zamestnancov. Vstup je rampou. Kolaudácia v r.2003.
-3*sklad ( 2 chladené sklady na 3-5stupňov a 5-7 stupňov, 1 nechladený sklad), expedícia, 2 kancelária, pokladňa, 2x* šatňa s kúpelňou a WC, kúpelňa s tech.miestnosťou, denná miestnosť, sklad obalov, rampa
-podlahová plocha bez plochy rampy je 574m2. Rampa má 48,6m2.

2.NADZEMNÉ PODLAŽIE-stavba slúžiacia ako rekreačno regeneračné centrum. Vstup je samostatným schodiskom z exteriéru. Kolaudácia v r.2015.
-vstupná hala s recepciou, fitness, kaviareň s barom, kancelária, fotónová terapia, chodba, masáž, kozmetika, tepidárium, welness, 3x sauna, 3x šatňa, odpočívareň, upratovanie, 4x WC, techn.miestnosť, sklad bowlingu, 2 bowling.dráhy, kuchyňa, kotolňa, strojovňa bowling, archív, salónik, zasadačka, lodžia, prístupové schodisko.
-podlahová plocha bez plochy schodiska a loggie je 611m2

1.NP-murovaná hala, tehla PROTHERM 300, so zateplením
2.NP-oceľová konštrukcia, porobetónové tvárnice, zateplenie, strešné sendvičové panely s krytinou z trapézového plechu, eurookná, strešné okná Velux

Inžinierske siete: 
-elektrina, solárne panely na streche
-voda - vlastná studňa
-odpad - kanalizácia
-plyn - kúrenie je cez plynový kondenzačný kotol s bojlerom v kombinácii so solárnym ohrevom a tepelným zásobníkom. Radiátory a podlahové kúrenie. 
Kamerový systém

Prístup k objektu je od asfaltovej cesty.
Parkovanie:  priamo pred rampou + vo dvore je 428m2 priestoru

Nehnuteľnosti sú v osobnom vlastníctve, je možné ich financovať aj cez hypotéku. 

Cena nehnuteľností je 1.2mil,-eur + 23% dph (majiteľom je právnická osoba)
Cena je vrátane poplatkov spojených s prevodom vlastníckych práv k tejto nehnuteľnosti.

Všetky potrebné informácie týkajúce sa nehnuteľnosti ako aj obhliadku Vám zabezpečia licencovaní realitný makléri Ing. Peter Heriban, tel. 0908796298 a Ing. Klaudia Heribanová, RSc, tel. 0908361627

Realitná kancelária Heriban reality, s.r.o.
Murgašova 3, 040 01 Košice
mobil:0908796298
e-mail: info@kosice-reality.sk
kosice-reality.sk

Vlastnosti

Status:
aktívne
Vlastníctvo:
osobné
Úžitková plocha:
1185 m2
Zastavaná plocha:
688 m2
Podlahová plocha:
1185 m2
Skladová plocha:
1185 m2
Stav:
čiastočne prerobený
Celková plocha:
1185 m2

Informatívna úverová kalkulačka

Pozrieť na mape

Maklér

Ing. Peter Heriban

Ing. Peter Heriban

realitný maklér, konateľ

  • Slovensky
  • English
  • rusr
  • narks
  • sora

Volám sa Peter Heriban, narodil som sa v r.1980 a pochádzam od Trnavy, kde som vyrastal v rodine s 2 mladšími sestrami. Vyštudoval som vysokú školu Ekonomickú.  V 2003 som sa presťahoval do Košíc, ktoré je už roky aj mojim domovom. Mám úžasné 2 deti  Sofinku a Filipka, na ktorých som veľmi hrdý.

Po škole som sa rozhodol pre podnikanie v oblasti obchodu, pomoci ľudom. 6 rokov som podnikal vo finančnom poradenstve, mal vlastnú pobočku, tím finančných poradcov, robil som vlastné semináre. Odmenou boli pre mňa stovky spokojných klientov, ktorým som pomohol si zabezpečiť dôchodok, poistenie či sporenie.

Vplyvom okolností sme sa v r.2009 rozhodli pre zmenu. Stále som chcel zostať v oblasti obchodu a služieb, lebo práca s ľuďmi a pomoc ľudom ma veľmi baví, tak som sa rozhodol pre budovanie si vlastnej značky v realitách pre lokalitu Košice a Košice okolie.

 

Mojim životným číslom je 8 a navyše som v znamení baran, čo vystihuje aj moje vlastnosti a schopnosti potrebné pre úspešnú prácu realitného makléra:

  • neustále sa vzdelávam a pracujem na sebe
  • mám vysoký zmysel pre spravodlivosť, spravodlivé jednanie a konanie, ľudia mi dôverujú a vedia sa na mňa spoľahnúť
  • som pracovitý, trpezlivý, mám organizačné schopnosti, dar zdravého úsudku,
  • mám veľkú zodpovednosť a dôraz na detaily, som vytrvalý a húževnatý
  • využívam svoju intuíciu a som empatický

 

Ako realitný maklér som:

Profesionálny a spoľahlivý: mám odborné vedomosti a 14ročné skúsenosti v oblasti nehnuteľností. Som spoľahlivý a dodržiavam vysoké štandardy etiky a profesionality.

Výborné komunikačné schopnosti: som schopný efektívne a jasne komunikovať s klientmi, porozumieť ich potrebám a požiadavkám a odpovedať na ich otázky a obavy.

Vynikajúci obchodník: mám schopnosť vyjednávať a presviedčať, a to nielen pri stanovovaní cien, ale aj pri riešení prípadných sporov a konfliktov medzi kupujúcimi a predávajúcimi.

Vyhľadávač príležitostí:  aktívne skúmam trh s nehnuteľnosťami, sledujem vývoj cien, nové ponuky

Dôkladný a organizovaný: som dôkladný vo všetkých aspektoch svojej práce. Mám silné organizačné schopnosti a som schopný efektívne riadiť množstvo informácií, dokumentov a termínov, ktoré sú s touto prácou spojené.

Empatický a ohľaduplný: som schopný pochopiť potreby a očakávania klientov a prispôsobiť sa im. Som ohľaduplný voči ich individuálnym situáciám a viem, že kúpa alebo predaj nehnuteľnosti je často emocionálnym procesom.

Prispôsobivý a flexibilný: viem s prispôsobiť rôznym situáciám a potrebám klientov. Som flexibilný a pripravený pristúpiť k jedinečným výzvam a riešiť ich s nadšením a profesionalitou.

 

Mojimi obľúbeným citátmi, ktorými sa riadim v mojej práci:

"Čo dávaš, to dostaneš" , „ čo zaseješ, to zožneš"

Ja ako realitný maklér poskytujem svojim klientom kvalitnú realitnú službu a snažím sa tým získať si ich dôveru.

 

Kto chce, hľadá spôsoby, kto nechce, hľadá dôvody.“

Mám skutočnú vášeň a motiváciu pre túto prácu, aktívne hľadám spôsoby, ako prinášať výsledky a dosahovať úspech. Vzdelávam sa, zlepšujem svoje zručnosti a hľadám nové príležitosti. Snažím sa prekonať prekážky a vyhľadávať riešenia, aby som mohol lepšie slúžiť svojim klientom.

 

Nesnívaj svoj život. Začni žiť svoje sny.“

Ako realitný maklér je dôležité mať vášeň a túžbu pre túto prácu. Tým, že si stanovíme jasné sny a ciele v tejto oblasti, môžeme začať žiť a uskutočňovať svoje sny prostredníctvom aktívneho kroku.

To zahŕňa vzdelávanie sa, získavanie skúseností, budovanie siete kontaktov a vyhľadávanie príležitostí. Taktiež zahŕňa odvahu a odhodlanie prekonať obavy a prekážky, ktoré môžu vyskočiť na našej ceste.

Radi Vám poradíme

Podobné nehnuteľnosti