
3-izb.tehl.byt s balkónom a logiou, 74m2, Jiskrova ul, Staré Mesto
- 3
- 74 m2
Ulica: | Poľská |
---|---|
Obec: | Košice-Juh |
Okres: | Košice IV |
Kraj: | Košický kraj |
Druh: | Byty |
Typ: | Predaj |
Typ bytu: | 3-izbový byt |
už predané
Realitná kancelária Heriban SK Vám ponúka exkluzívne na predaj priestranný 3 izbový tehlový byt s dvomi veľkými 8,1m a 7,4m dlhými loggiami na Poľskej ulici v Košiciach, Košice-časť Juh, kat.územie Južné mesto, v pokojnej lokalite, blízko do centra mesta.(MHD električky a autobusy). Bytový dom je umiestnený pár metrov od ulice Rastislavova a neďaleko ulice Južná trieda.
Byt má úžitkovú plochu 87m2 + navyše plochy loggií, nachádza sa na 3.poschodí z 5, v zateplenom tehlovom bloku kolaudovanom v r.1982, s renovovaným výťahom. V bytovom dome je len 14 bytov so slušnými susedmi, čo zabezpečuje ešte väčší kľud.
K bytu je pridelené 1 parkovacie miesto hneď pred bytovým domom, viac info osobne na obhliadke.
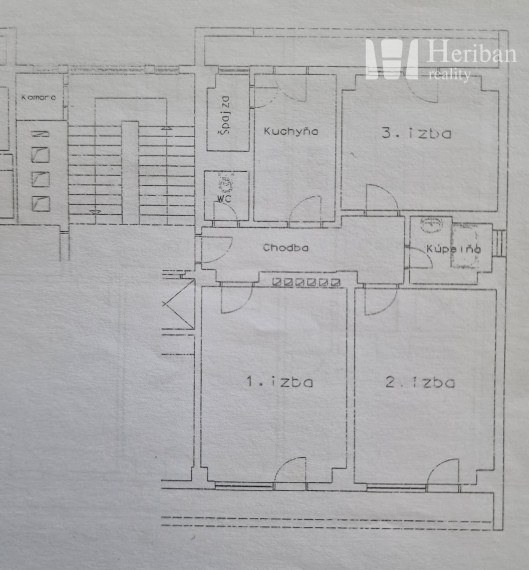
Dispozícia bytu-viď pôdorys:
-kuchyňa so špajzou a výstupom na loggiu
-3 veľké samostatné izby, z každej izby je tiež výstup na loggiu
-chodba,
-kúpeľňa s oknom na vetranie, samostatné WC
-komora pred bytom
-dve 7m dlhé loggie
Kuchyňu s izbou je možné dispozične prepojiť, priečka medzi miestnosťami nie je nosná !!!
Byt je v slušnom obývateľnom pôvodnom stave a je ihneď voľný:
-plastové okná v celom byte
-staršia kuchynská linka so sporákom
-staršia murovaná kúpelňa s vaňou, rebrinový radiátor
-menené radiátory v byte
Byt je v osobnom vlastníctve-možná kúpa aj na hypotéku. Orientácia bytu je V-Z, čím je byt príjemne teplý a presvetlený. Kúpou je byt voľný.
Všetky potrebné informácie týkajúce sa nehnuteľnosti ako aj obhliadku Vám zabezpečí licencovaný realitný maklér Ing. Peter Heriban.
Realitná kancelária Heriban SK,s.r.o.
Murgašova 3, 040 01 Košice
mobil:0908796298
e-mail: info@kosice-reality.sk
kosice-reality.sk
realitný maklér, konateľ
Volám sa Peter Heriban, narodil som sa v r.1980 a pochádzam od Trnavy, kde som vyrastal v rodine s 2 mladšími sestrami. Vyštudoval som vysokú školu Ekonomickú. V 2003 som sa presťahoval do Košíc, ktoré je už roky aj mojim domovom. Mám úžasné 2 deti Sofinku a Filipka, na ktorých som veľmi hrdý.
Po škole som sa rozhodol pre podnikanie v oblasti obchodu, pomoci ľudom. 6 rokov som podnikal vo finančnom poradenstve, mal vlastnú pobočku, tím finančných poradcov, robil som vlastné semináre. Odmenou boli pre mňa stovky spokojných klientov, ktorým som pomohol si zabezpečiť dôchodok, poistenie či sporenie.
Vplyvom okolností sme sa v r.2009 rozhodli pre zmenu. Stále som chcel zostať v oblasti obchodu a služieb, lebo práca s ľuďmi a pomoc ľudom ma veľmi baví, tak som sa rozhodol pre budovanie si vlastnej značky v realitách pre lokalitu Košice a Košice okolie.
Mojim životným číslom je 8 a navyše som v znamení baran, čo vystihuje aj moje vlastnosti a schopnosti potrebné pre úspešnú prácu realitného makléra:
Ako realitný maklér som:
Profesionálny a spoľahlivý: mám odborné vedomosti a 14ročné skúsenosti v oblasti nehnuteľností. Som spoľahlivý a dodržiavam vysoké štandardy etiky a profesionality.
Výborné komunikačné schopnosti: som schopný efektívne a jasne komunikovať s klientmi, porozumieť ich potrebám a požiadavkám a odpovedať na ich otázky a obavy.
Vynikajúci obchodník: mám schopnosť vyjednávať a presviedčať, a to nielen pri stanovovaní cien, ale aj pri riešení prípadných sporov a konfliktov medzi kupujúcimi a predávajúcimi.
Vyhľadávač príležitostí: aktívne skúmam trh s nehnuteľnosťami, sledujem vývoj cien, nové ponuky
Dôkladný a organizovaný: som dôkladný vo všetkých aspektoch svojej práce. Mám silné organizačné schopnosti a som schopný efektívne riadiť množstvo informácií, dokumentov a termínov, ktoré sú s touto prácou spojené.
Empatický a ohľaduplný: som schopný pochopiť potreby a očakávania klientov a prispôsobiť sa im. Som ohľaduplný voči ich individuálnym situáciám a viem, že kúpa alebo predaj nehnuteľnosti je často emocionálnym procesom.
Prispôsobivý a flexibilný: viem s prispôsobiť rôznym situáciám a potrebám klientov. Som flexibilný a pripravený pristúpiť k jedinečným výzvam a riešiť ich s nadšením a profesionalitou.
Mojimi obľúbeným citátmi, ktorými sa riadim v mojej práci:
"Čo dávaš, to dostaneš" , „ čo zaseješ, to zožneš"
Ja ako realitný maklér poskytujem svojim klientom kvalitnú realitnú službu a snažím sa tým získať si ich dôveru.
„Kto chce, hľadá spôsoby, kto nechce, hľadá dôvody.“
Mám skutočnú vášeň a motiváciu pre túto prácu, aktívne hľadám spôsoby, ako prinášať výsledky a dosahovať úspech. Vzdelávam sa, zlepšujem svoje zručnosti a hľadám nové príležitosti. Snažím sa prekonať prekážky a vyhľadávať riešenia, aby som mohol lepšie slúžiť svojim klientom.
„Nesnívaj svoj život. Začni žiť svoje sny.“
Ako realitný maklér je dôležité mať vášeň a túžbu pre túto prácu. Tým, že si stanovíme jasné sny a ciele v tejto oblasti, môžeme začať žiť a uskutočňovať svoje sny prostredníctvom aktívneho kroku.
To zahŕňa vzdelávanie sa, získavanie skúseností, budovanie siete kontaktov a vyhľadávanie príležitostí. Taktiež zahŕňa odvahu a odhodlanie prekonať obavy a prekážky, ktoré môžu vyskočiť na našej ceste.