
Ulica: | Baška |
---|---|
Obec: | Košice-Myslava |
Okres: | Košice II |
Kraj: | Košický kraj |
Druh: | Domy |
Typ: | Predaj |
Typ domu: | Chata |
Iné: |
Realitní makléri Peter Heriban a Klaudia Heribanová Vám ponúkajú na predaj zrekonštruovanú, zateplenú a zariadenú chatu s terasou, ideálnu na relax v tichej lokalite blízko Košíc. Tento rekreačný objekt je skvelou voľbou pre tých, ktorí hľadajú spojenie s prírodou, ale nechcú sa vzdať komfortu.
ZÁKLADNÉ INFORMÁCIE:
Lokalita: | Myslava-Maša, 15 minút od centra Košíc |
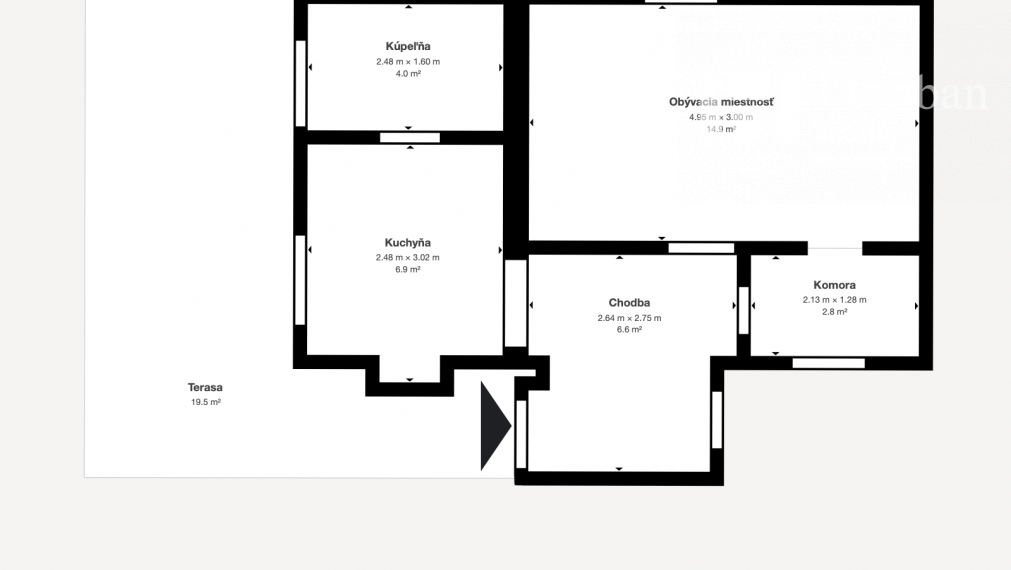
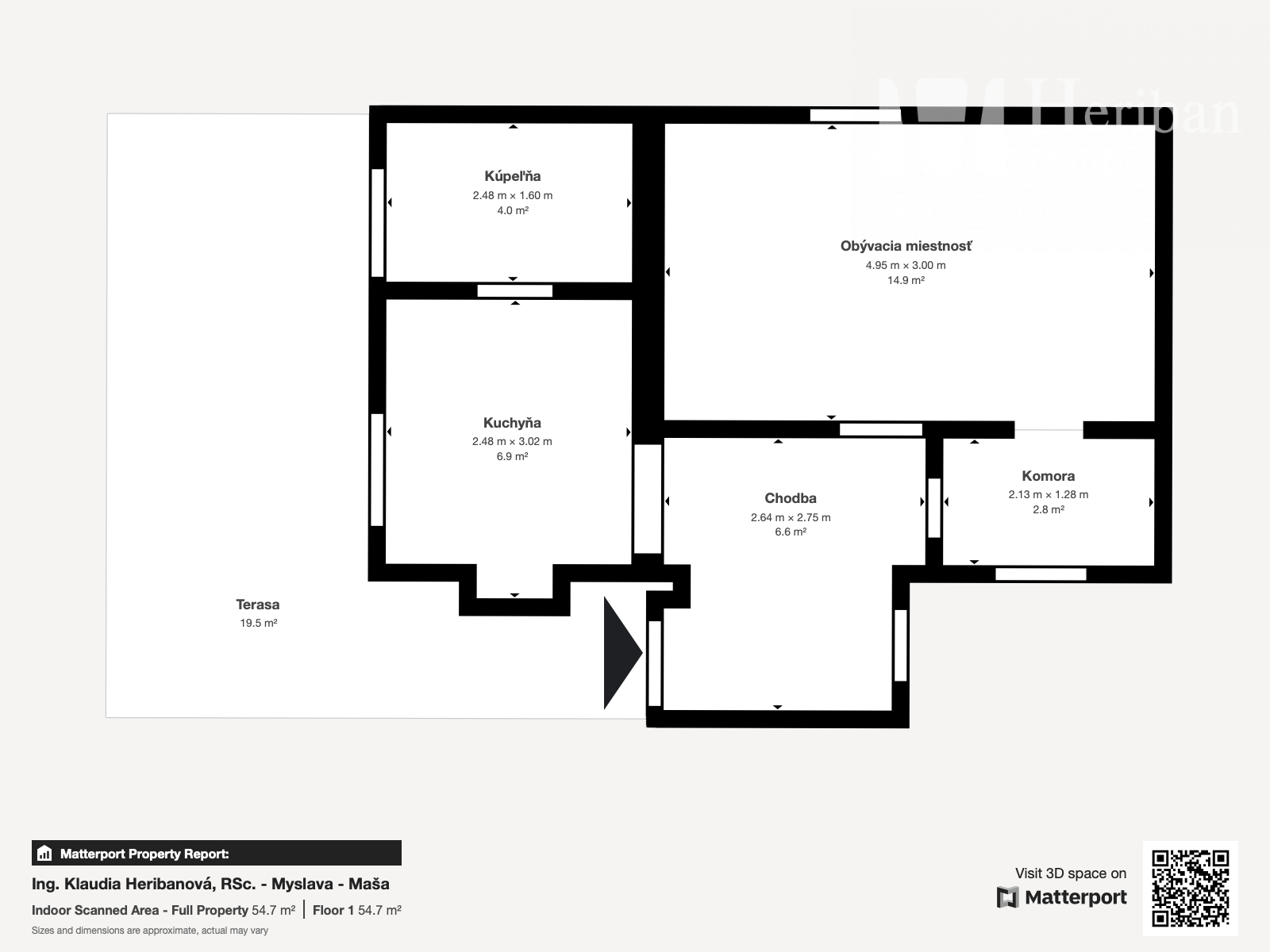
Zastavaná plocha: | 49 m² |
Pozemok: | 240 m² (záhrada 191 m²) |
Materiál: | tehla, betón |
Strecha: | asfaltová lepenka |
Virtuálna prehliadka: | https://my.matterport.com/show/?m=UXLapB3ifcG |
Video: | https://youtu.be/CkNXyv4YF7E?si=lRmOXTIwoXxWbJER |
DISPOZIČNÉ RIEŠENIE:
VYBAVENIE:
PARKOVANIE: Spevnená plocha pred chatou
LOKALITA: TICHÁ OÁZA PRI LESE:
Chata sa nachádza v obľúbenej rekreačnej oblasti Myslava-Maša, len 15 minút od centra Košíc. Pokojná zelená lokalita s výbornou dostupnosťou k občianskej vybavenosti (obchody, školy, lekár, reštaurácie) a prístupom k prírodným atrakciám, turistickým chodníkom a cyklotrasám. V blízkosti cca 5min. zastávka MHD.
HLAVNÉ BENEFITY:
ZNÍŽENÁ CENA: 99.000 Eur
V cene je zahrnutá provízia realitnej kancelárie a kompletný právny servis zabezpečovaný advokátskou kanceláriou.
Všetky potrebné informácie týkajúce sa nehnuteľnosti ako aj obhliadku Vám zabezpečia licencovaní realitný makléri Ing. Klaudia Heribanová, RSc, tel. 0908361627 a Ing. Peter Heriban, tel. 0908796298.
Realitná kancelária Heriban reality, s.r.o.
Murgašova 3, 040 01 Košice
mobil:0908796298
e-mail: info@kosice-reality.sk
kosice-reality.sk
realitný maklér